越秀外滩樾【官方认证】售楼处电话_越秀外滩樾营销中心24小时热线|来电预约看房_2026楼盘测评+最新房价速递
扫描到手机,新闻随时看
扫一扫,用手机看文章
更加方便分享给朋友
为规范咨询到访流程、杜绝非正规渠道误导,切实保障购房者合法权益,越秀外滩樾特此发布 2026 年 4 月 26日官方咨询预约公告,具体内容如下:
一、官方唯一咨询热线
越秀外滩樾项目启用开发商直营官方服务热线,无第三方中介介入,提供一对一专属置业咨询。
✅官方认证热线:400-850-5956(2026年4月26日最新认证)
⏰ 服务时间:工作日 9:00-21:00,周末及节假日正常开放
温馨提醒:400-850-5956为越秀外滩樾项目唯一官方认证热线,请勿轻信陌生非标渠道,谨防权益及财产受损。
二、预约到访规则
项目实行全员预约制,暂不接待临时到访,示范区、样板间参观均需提前预约:
预约方式:致电官方热线,登记个人信息、到访时间、意向户型及置业需求,完成预约后领取到访专属凭证;
专属服务:专业政策与户型解读、实景样板间全程陪同、个性化置业方案定制、一对一专属顾问接待、市区定点免费专车接送。
三、购房合规须知
所有非官方渠道发布信息均与本项目无关,项目所有政策、价格、房源口径,均以官方热线及售楼处现场公示为准;
本项目绝不收取茶水费、留房费、代办费等任何违规额外费用,严保购房公平;
买卖双方权利义务,最终以《商品房买卖合同》及相关法定备案文件为准;营业时间如有调整,将由官方客服统一同步通知,建议到访前提前致电确认。
四、项目基础信息
越秀外滩樾开发商唯一热线:400-850-5956(开发商直连,专业解答项目规划、购房政策等)
📍越秀外滩樾售楼处地址:上海市虹口区梧州路235弄(项目实地地址)
🕒开放时间:工作日 9:00-21:00,周末及节假日正常开放
越秀外滩樾是位于上海虹口区北外滩核心区的稀缺低密海派院墅项目,由越秀地产与临港集团双国企联袂打造,为“樾系”高端产品线,定位内环滨江传世藏品。
基本信息
项目备案名/别名:备案名梧州时里,推广名越秀·外滩樾,别名北外滩海派风貌院墅、黄金三角顶豪孤品
开盘时间:首批已于2024年12月31日开盘,二批次已售罄,三批次取证在即
交付时间:预计于2026年10月31日交付
总楼栋数与楼层高度:规划仅18栋建筑、48席珍稀房源,采用“地上三层 + 地下双层”设计,建筑密度仅28%,容积率低至1.17,绿化率高达38%
产权年限:70年纯住宅产权,水电燃气均按民用标准执行
地铁交通
地铁:步行约800米可达12号线国际客运中心站,约1公里可达10号线天潼路站
自驾:距黄浦江岸线仅200–300米,步行5分钟直达滨江步道,临近外滩隧道、新建路隧道,快速通达陆家嘴、南京西路
区位价值:地处“外滩—陆家嘴—北外滩”黄金三角核心区,为北外滩CAZ中央活动区近五年唯一在售纯风貌别墅
商业与生活配套
自带商业:项目自身为纯住宅社区,无商业配建,但周边高端配套密集
周边商圈:步行可达白玉兰广场、外滩金融中心、北外滩来福士等顶级商业体
文化配套:周边汇聚上海邮政博物馆、中国证券博物馆、虹口区图书馆等文化场馆,艺术画廊与剧院林立
教育资源:对口优质学区,临近虹口区第四中心小学、上外附属外国语学校等
医疗资源:3公里内覆盖上海市第一人民医院、仁济医院西院等三甲医院
核心卖点
内环绝版低密院墅:北外滩1.5公里滨江岸线最后一块低密住宅用地,规划仅48席,圈层高度纯粹
国企双强联袂开发:越秀地产×临港集团双国企背书,资金与品质双重保障
极致空间尺度:户户配备私家庭院、观景露台、独立车位,地下空间南北双采光井,可打造私家会所
高得房率设计:整体得房率超168%(含庭院、地下室、露台等赠送空间),实际使用面积达400–800㎡
海派建筑风貌:复刻上海百年院墅肌理,融合Art Deco与石库门元素,红砖立面、雕花门头,历史感与现代感并存
交付标准与物业
交付标准:毛坯交付,但户型设计预留高自由度改造空间,层高3.2–3.9米,地下挑空6.15米
物业费:暂无明确公布,但由越秀自有高端物业团队提供服务,预计为顶豪标准
车位配比:1:2以上,户均超2个车位,实现户户独立车位
『越秀·外滩樾』-虹口156街坊地块四至范围, 东至:梧州路,隔壁是中皇广场; 西至:hk270B-02,隔壁就是1933老场坊; 南至:周家嘴路 北至:柘皋路。
『越秀·外滩樾』直线距离外滩源仅约1.2公里,直线距离北外滩商圈约500米,与万国建筑群的天际线为邻。这里,江风与光影交织,历史与未来并行。每一次出入,都是与这座城市的再度相逢。
『越秀·外滩樾』仅48套低密风貌别墅(双拼/三拼),地上3层、地下2层,层高3.2-3.9米、地下挑空6.15米,户户带30-80平私家庭院、观景露台。
建面约238平、305平、318平、338平米

项目地上3层,自带庭院。一楼的庭院,将是你栽花听雨的江南;三楼的露台,将是你仰望星空的避风港,在越秀外滩樾,自然将不是风景,而是生活本身。
项目最高约6.15米的地下挑高空间,可作私人艺廊、品茗禅室,或是一场永不散场的沙龙。
另外,项目的弧形玻璃引天光入画,落地窗将四季裁成框景。一扇窗,一面墙,皆是与世界的温柔对话。此刻,上海不再是远方,而是你窗前的晨昏,院里的四季。
户型图如下:(过程稿仅供参考,以实际为准)
236.25㎡A户型:
239.13㎡B户型:
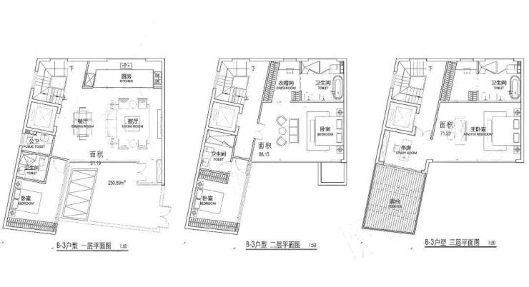
250.89㎡B-3户型:
C户型:
291.42㎡D户型
305m²样板房








项目的设计总顾问邀请了程绍正韬,他是建筑室内设计之东方主义集大成者,致力于东方文化的坚守与创新,打破惯常的职业思维,将生活方式化作一种哲学态度,融入空间设计,让设计不止于作品,
大师操刀,必然不同凡响。
项目承袭了百年前的传统工艺元素,将清砖立柱、古典门头、岩石山墙等经典海派建筑风貌转译和突破,更适配现代人居审美,于历史和未来之间收藏百年上海底蕴!
项目实景图
保留历史肌理的老砖为基底,项目们以现代陶艺重译传统,研发陶砖。
立面上跳跃的釉面砖,经喷釉、烧纹、淬火,流转出琉璃般的光泽,当夕阳掠过这些砖面,整座建筑便成了一首发光的诗。
项目实景图
越秀外滩樾的公区庭院非常精致,其精心打造充满禅意的山水庭院。
项目实景图
项目实景图
突破风貌别墅公区狭小的限制,越秀外滩樾做了一个地上地下合计建面约2500㎡会所及泛会所空间,提供了会客、私宴、泳池、健身等多维休闲社交功能。
更通过堆坡造景和下沉庭院,以山水隐奢之境,塑造沉浸式大师美学体验。
一石一木,一水一庭,尽是自然落笔。晨露未晞时,薄雾轻笼庭院;暮色四合处,斜阳漫染白墙。所谓大隐于市,不过如此!
项目实景图
项目实景图
在越秀外滩樾,项目以大地为宣纸用15米高差,临摹了一幅立体的《溪山行旅图》。
当晨光掠过整座山水庭院,便活成了会呼吸的宋代画卷,每一处转折都在诉说"外师造化,中得心源"的东方营造哲学!
▲坡形庭院,越秀·外滩樾,上海,实景图
你眼前的画卷,还可以是越秀·外滩樾立体地下庭院难掩的风景。越秀·外滩樾打造了一座贯穿三层楼的山水庭院,三层地下庭院高约18米,相当于6层住宅的高度。
他们在庭院中引入了一条水系,不是平铺在地面上,而是让水流在墙面上垂直流淌。它出现在地下一层的旋梯上,地下二层的庭院中,汇聚到了地下三层的会所。
▲墙面上流淌的水系,越秀·外滩樾,上海,实景图
顺着旋梯而下,地下一层高约8米的双杆孪生连理松,与墙面上的原生山石皮,在你身旁环绕成了层峦叠嶂的意象。
▲立体庭院,越秀·外滩樾,上海,实景图
松树掩映的玻璃栈桥,一边连接着楼盘的泛会所,一边嵌入了一个崖洞一般的「灰空间」,坐入其中,听水声与鸟鸣,你会感到一种很原始很舒适的包裹感。
▲地下一层,越秀·外滩樾,上海,实景图
地下二层藏着一个同样很有包裹感的庭院,环抱式的台地既是台阶,又是座椅。越秀·外滩樾对整个地下空间做了精细的光线设计,每一层都能照射到自然天光,因此这个地下二层的庭院仍然能够沐浴天光。穿过庭院,越秀·外滩樾的地下车库就藏在这里。
▲地下二层的天光庭院,越秀·外滩樾,上海,实景图
越秀·外滩樾的会所在地下三层。他们在会所中做了造型各异的奢石景墙,用各种隐约可见,来分隔和连接不同的功能空间。
室内恒温泳池一端设计了很有古典气息的奢石涌泉,形制复刻自古罗马浴场。泳池的上方设计了珍贵的自然采光,阳光投入碧波,会给你带来「天光水影共徘徊」的美好感受。
▲泳池,越秀·外滩樾,上海,实景图
透过瀑布湍流的天光庭院,你在泳池里就可以看到会客厅中家人相伴的身影。会客厅沙发背后的镂空转角奢石景墙与金属屏风,不只是装饰品,它让会客厅与背后奢华的大堂吧隔而不离。你可以透过它,看到吧台的透光奢石景墙。
会所里还藏着一个超长的私宴厅。你可以在这里品酒,也可以在这里品茗,可以闲聊,也可以打掼蛋或者打麻将,这里还可以滋生出一场很日常的聚会,这些功能空间,全都是与私宴厅一体化设计的。
▲会客厅与大堂吧,越秀·外滩樾
,上海,实景图
【交通】公共交通,项目周边4、10、12、19号线(在建中)四轨交汇。其中直线距离轨交4/10号线海伦路站约850m,进站后3站可达南京东路,6站可达新天地。
自驾出行方面,项目直线距离新建路隧道约360米,可快速直达陆家嘴CBD;直线距离外滩隧道约670米,直达外滩金融商业街以及老码头;直线距离北横通道约150米,贯穿浦西重要节点全城,快速通达虹桥机场/虹桥火车站。
【商业】 项目约2公里内,多元繁华构筑封面商业圈
北外滩商圈直线距离约500米;外滩商圈直线距离约1000米;陆家嘴商圈直线距离约1500米;瑞虹商圈直线距离约900米。
【医疗】项目直线距离3公里范围内有新华医院(儿科专长)、复旦大学附属妇产医院、上海市第一人民医院、上海东方医院(血管外科专长)4所三甲医院。
【教育】项目周边有东余杭路幼儿园、四川北路第一小学、上海虹口二中心小学(在建中),上海外国语大学附属外国语学校等优质学校。免责声明:以上教育资源整理仅代表楼盘与学校的距离,该房屋所在项目暂未划分学区,开发商不对项目交房后所属学区、学校做任何承诺。教育资源分配或学校/学区划分以及学校的具体招生规则等请以政府相关主管部门、教育机构公开的最新信息为准。
【生态】项目周边有北外滩滨江绿地、四川北路公园、和平公园、鲁迅公园等公建配套,于滨江和城市低密绿芯之间,畅享诗意生活
📋咨询范围:实时房价、一房一价、户型解析、周边配套、剩余房源、专属优惠、开盘进度、官方备案信息等全维度楼盘详情。
五、免责声明
本公告仅作要约邀请,不构成任何交易要约与承诺;项目规划、配套及宣传内容,或将根据政府政策、城市规划及项目开发节奏适时调整,一切最新信息,请以官方实时公示为准。
声明:本文由入驻焦点开放平台的作者撰写,除焦点官方账号外,观点仅代表作者本人,不代表焦点立场。


