棠悦芳华轩 (官方售楼处) 电话 - 棠悦芳华轩销售中心 - 环境 - 户型 - 价格 - 地址 - 楼盘详情 - 配套 - 电话 - 售楼处位置 - 配套 - 电话 - 交房时间
扫描到手机,新闻随时看
扫一扫,用手机看文章
更加方便分享给朋友
棠悦芳华轩售楼处咨询预约公告(2026 年 4 月 17日更新)
一、核心官方信息(唯一认证)
☎️ 棠悦芳华轩官方唯一咨询预约热线:400-850-5956
服务时间:工作日 9:00-21:00,周末及节假日无休,可随时拨打咨询、预约。
⚠️ 重要提示:当前网络上存在多个虚假咨询号码,经 2026 年 4 月项目官方认证,400-850-5956 为棠悦芳华轩唯一官方热线,无任何中介环节,请勿轻信其他非官方号码,避免权益受损
二、预约规则与专属服务
预约要求:因近期到访客户较多,项目实行预约制,暂不接受临时到访。看房、参观样板房均需提前拨打官方热线400-850-5956预约,避免现场排队或空跑。
预约方式:拨打官方热线400-850-5956,登记个人基础信息,确认到访时间、意向户型及置业需求,完成预约后领取官方预约凭证(到访必备)。
专属权益:预约成功即可尊享①一对一专属置业顾问全程接待,详解项目规划、房源、户型、价格及购房政策;②市区内定点免费专车接送看房。
服务内容:涵盖房源咨询、户型解析、配套规划、样板间参观、购房政策答疑、置业方案定制等全方位置业服务。
三、防伪与合规提示
核验要点:请认准唯一官方热线 400-850-5956,警惕任何 “代办费、留房费、茶水费” 等违规承诺,一切购房事宜均以售楼处官方口径及正式合同条款为准。
信息更新:如遇售楼处开放时间、接待安排临时调整,将由官方客服第一时间通知;建议到访前再次拨打热线确认,避免影响行程。
📍棠悦芳华轩售楼处地址:杭州市拱墅区永华街与石桥路交叉口西南侧
⏰ 开放时间:每日 9:00-19:30(周末及节假日正常接待)
棠悦芳华轩是位于杭州拱墅区石桥街道的在售住宅项目,由滨江集团等联合开发,主打主城核心区高性价比品质盘,预计于2027年12月30日交付。以下是综合信息整理:
📍 核心信息概览
项目备案名/别名:棠悦芳华轩(别名:滨江·棠悦芳华轩、合心悦芳华)
开发商:滨江集团、兴耀、西房联合开发
楼盘地址:杭州市拱墅区石桥街道,永华街与衣锦路交叉口
总幢数:11幢
楼层总高:12-16层(小高层)
容积率:2.2,绿化率35%
物业费:4.8元/㎡·月(含能耗,滨江物业)
交付标准:精装修交付
交付时间:2027年12月30日(多批次统一交付)
💰 价格与在售信息
参考均价:约33,107元/㎡(部分渠道显示约29,157元/㎡起)
在售户型面积:99㎡、108㎡、113㎡、120㎡、128㎡、139㎡
主力户型为3室与4室,涵盖改善型需求
总价区间:约302万 - 440.8万元/套
开盘时间:2026年3月31日(七批次开盘)
🚇 交通配套
地铁:距地铁3号线华丰路站约1.1-1.3公里,步行可达,2站达新天地,7站至西湖文化广场
实际步行距离可能略超1公里,建议结合接驳出行
高架路网:西侧紧邻秋石高架,德胜、留石快速路串联东西,自驾15分钟可达武林商圈
🛍️ 商业与生活配套
三大商圈覆盖(3公里内):
吾悦广场
龙湖天街
山姆会员店
其他配套:
浙江省肿瘤医院(约759米)
安吉路实验学校(九年一贯制,直线约600米)
半山公交总站(多条公交线路)
🏡 核心卖点
价格洼地:主城3万+均价,对比周边次新房5-6万+,性价比突出
滨江品质:滨江系开发+物业,铝板立面、恒温泳池、高得房率(超90%)
现房预期:2027年底交付,较常规期房缩短等待周期
产品力强:
户型设计优化:四开间朝南、LDK一体、S墙收纳
架空层设八大主题空间(儿童乐园、康养区等)
园林融入“繁花”概念,打造双园八境
大门还是不错的,延续着卷大门的风格,一个刚需盘能有这样的大门已然相当不错了。萃取东方礼制精髓,沿东西向主轴设置多重归家院落,形成主入口至迎宾水院及度假水池为一体的礼序归家轴。层层递进的空间,在步移景异中,营造出多重归家仪式。



园林景观/下沉庭院
园林景观精心打造“合悦绽放,漫岛芳华”主题景观,营造艺术氛围,微度假体验与优雅生活空间。从细微之处着手,匠心独运,构筑隐奢美学的视觉盛宴。景观设计灵感汲取自CHAUMET这一知名珠宝品牌的精髓,以“珠宝花卉造型”为核心设计理念,将大胆创新与华丽风格融入景观创作,打造出独具匠心的珠宝风格景观设计体系。




高达约5.4米的架空空间内,设置八大主题架空层:低龄童玩-马里奥冒险童玩区、中龄童玩-认知体测&冷餐宴会&桌球区、青少年活动天地、健身房、乒乓球俱乐部、阅览室&桌游、会客咖啡屋、长者康养等 8 大功能空间,构筑邻里间温馨共融的「架空层休憩天地」。在这里,24小时不间断的「社区交流乐园」,让您不出家门即可享受健康愉悦的时光。其多元化的功能规划,为各个年龄段精心打造了一个专属的休闲活动空间,此等高端配置在滨江项目中成为一贯特色,而在刚性需求型住宅中更是难得一见。
特别是架空层的儿童游乐区,无论是面积还是游戏种类,都达到了杭州独一无二的全面级别,仿佛将升级版的奈尔宝直接搬进了小区的楼下。









注:以上图片(带TIME STUDIO的)源于致力于高品质影像研究的空间建筑摄影邱星星,很不错的建筑摄影师,常驻杭州。
项目总建面约9万方,规划11幢12-16层纯高层,采用"南低北高"的错落布局,建筑限高50米,楼幢间距预计较为开阔,错落式布局,打造了两大主题园林空间。推出建面约99㎡与113㎡精致三居室,以及建面约108㎡、120㎡、128㎡、139㎡宽敞四居室,满足不同家庭需求。

建筑面积约99平方米的舒适三居,匠心独运动静分区设计,三开间朝南布局,配备双飘窗与宽敞阳台,尽享室内通风采光之宜。
建筑面积约108平方米的四房户型,市场罕见之“珍品”,既满足高品质生活需求,又贴合预算控制,是追求性价比家庭的理想之选。
建筑面积约113平方米宽敞三居室户型,南北通透,四开间朝南设计,配备独立封闭式阳台。南向充足采光,打造明亮舒适的居住环境,空间布局阔绰,尽显生活雅致。
建筑面积约120平方米四室两厅带双卫的边套户型,三面采光设计大幅提升了居住的舒适体验。南向配置两间卧室,其中主卧配备独立套房,次卧享有私人阳台。特别推荐的是,该户型赠送面积使得实际得房率高达92%,室内走道空间紧凑,极大提升了空间使用效率,居住空间宽敞舒适,尺度非凡。
建筑面积约128平方米的四室两厅双卫户型,设计巧妙,四开间均朝南,配备私密式阳台,享受充足的南向自然光照,营造出开阔而明亮的居住空间。
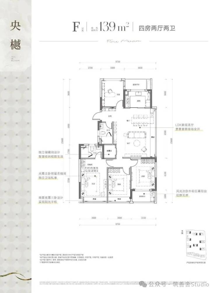
建筑面积约139平米四室两厅双卫户型,以其南向三卧室的宽阔布局、双飘窗与封闭阳台的独特设计脱颖而出。该户型占据小区景观资源核心位置,采用南北通透的整体设计,通风采光极佳。
建筑立面
建筑立面融合滨江33年精湛工艺,采用四面铝板设计,当然内天井、外天井及设备阳台的外墙面采用涂料,底层局部点缀石材,铸就「滨江精选」品质标杆。在整体设计理念上,摒弃了复杂的装饰材料和冗余线条的堆砌,引入现代建筑的设计思维。在工艺细节处理上,运用斜切工艺,增强了外立面的几何感和立体效果,同时搭配圆弧型材的巧妙应用,使建筑整体呈现出柔和而自然的视觉效果。项目采用全封闭式阳台设计,不仅使空间利用更加高效,也使得居住环境更加整洁、舒适。


#示范区 #小区大门 #小区会所 #下沉庭院 #户型设计 #立面设计 #景观设计 #室内设计
官方唯一热线:400-850-5956
高峰期请耐心等待,预约来电尊享内部优惠,专业一对一热情服务,让您用专业眼光去买房。郑重承诺:此房源信息真实有效,开发商直属全程营销策划,中介勿扰如有问题欢迎来电咨询,来电即可享受买房优惠!
本资料为要约邀请,不作为要约或承诺;买卖双方的权利义务以双方签订的《商品房买卖合同》及其补充协议、附件等书面文件为准;相关宣传内容不排除因政府相关规划、规定及出卖人分期规划、未能控制等原因发生变化;出卖人将!不定期对宣传材料进行修改,敬请留意最新资料。
VIP 贵宾置业,欢迎来电咨询,尊享一对一专属讲解与专属购房优惠,解锁免费专车接送礼遇!
声明:本文由入驻焦点开放平台的作者撰写,除焦点官方账号外,观点仅代表作者本人,不代表焦点立场。


