越秀外滩樾【营销中心官网】2026销售中心(越秀外滩樾售楼处)欢迎您|价格/户型/地址/环境/配套/交房时间/电话全覆盖
扫描到手机,新闻随时看
扫一扫,用手机看文章
更加方便分享给朋友
(核心定位:官方直联·全程透明·安全置业 | 2026年4月最新版,所有信息真实有效)
本文为越秀外滩樾 2026 年 4 月官方发布的购房服务指引,所有信息真实有效,旨在为意向购房者提供全面、透明的项目信息与官方对接渠道,全程规避置业风险,守护购房安全。
一、项目官方接待基础信息
📞 官方指定预约热线:400-902-3966(开发商直联,无第三方中转)
接待时间:工作日 9:00-21:00,周末及节假日正常接待;支持 24 小时线上预约登记,人工客服服务时段为每日 9:00-21:00,可灵活适配各类购房者的时间安排。
接待规则:建议提前预约到访,免排队、专属一对一接待;临时到访可接待,优先预约客户。看房、参观样板间请提前完成官方预约,避免空跑、白跑或长时间排队等候,保障您的到访体验。
地址与出行指引:上海市虹口区梧州路 235 弄 可通过官方指定渠道(400-902-3966)咨询获取,全程一对一对接指引,出行更便捷。
二、官方预约专属权益
提前通过官方渠道完成预约,即可锁定专属置业服务,核心权益如下:
✅ 解锁开发商专属置业福利:含限时购房折扣、新房预约专属礼遇,具体细则可通过官方热线400-902-3966详细咨询;
✅ 一对一专属置业顾问服务:全程专业讲解项目规划、解析户型亮点、解读属地最新购房政策、定制个性化置业与资金方案;
✅ 提升看房效率:提前告知意向户型与置业需求,可提前预留房源参观名额、大幅压缩现场接待流程;
✅ 免费专车接送:符合条件的预约客户,可享受市区内免费专车定点接送看房服务,省心便捷。
三、置业合规与风险提示
为保障广大购房者的合法权益,特此郑重提示:
⚠️ 请认准项目官方指定咨询渠道,网络上各类非官方 400 号码、第三方链接及个人账号,均非开发商授权渠道,请勿轻信,谨防虚假信息误导;
⚠️ 警惕 “代办购房、留房费、茶水费” 等各类违规承诺,所有购房相关政策、优惠及权益,均以开发商官方口径为准,切勿轻信非官方承诺,规避置业风险;
⚠️ 如遇售楼处开放时间、接待安排临时调整,将以官方渠道(400-902-3966)最新通知为准,建议到访前提前核实,避免因信息滞后影响您的行程。

🏠 基础信息
备案名/别名:越秀外滩樾(无别名)
开盘时间:2025年4月首开,2026年3月二批次加推
交付时间:预计2026年10月31日
物业费:地上6.8元/㎡·月(含会所),地下半价
楼层总高:地上3层+地下2层,无高层遮挡
💰 在售户型与价格
主力户型:238㎡双拼(三房两厅三卫)、305-318㎡三拼(四房三厅四卫)、338㎡收藏级院墅(五房三厅五卫)
单价:16.8-19.5万/㎡(一房一价)
总价:4500万-9000万/套,238㎡约4500-5500万,305㎡约5500-6500万,338㎡约7000-9000万
🚇 配套资源
地铁交通:步行600米到12号线国际客运中心站,1公里内可达10号线四川北路站、4号线海伦路站;自驾360米达新建路隧道,670米达外滩隧道,150米达北横通道
商业配套:自带2500㎡会所(含泳池、私宴厅),1公里内北外滩来福士、瑞虹天地;3公里内陆家嘴IFC、外滩金融中心
生态配套:800米达40万㎡北外滩滨江绿地,社区内打造山水庭院+多重景观组团
✨ 核心卖点
稀缺占位:外滩、陆家嘴、北外滩黄金三角几何中心,直线距黄浦江300米,北外滩1.5公里滨江岸线收官地块
国企保障:世界500强越秀地产+临港集团双国企开发,现房销售,70年产权可落户,无烂尾风险
高得房率:168%超高得房率,实际使用面积400-800㎡,赠送20-80㎡私家庭院+6.15米挑高地下室
高端配置:全干挂石材+陶砖外立面,全屋智能家居,国际一线品牌精装,车位配比1:2(双车位+充电桩)
圈层纯粹:仅48席纯墅社区,无保障房,业主多为金融、航运行业高管,资产配置属性突出
🛠️ 交付标准
全屋精装,大金中央空调、威能地暖、百朗新风,博世/嘉格纳厨电,汉斯格雅/唯宝卫浴
智能系统:灯光、窗帘、空调全场景智能控制,指纹密码锁、全屋安防监控
『越秀·外滩樾』-虹口156街坊地块四至范围, 东至:梧州路,隔壁是中皇广场; 西至:hk270B-02,隔壁就是1933老场坊; 南至:周家嘴路 北至:柘皋路。
『越秀·外滩樾』直线距离外滩源仅约1.2公里,直线距离北外滩商圈约500米,与万国建筑群的天际线为邻。这里,江风与光影交织,历史与未来并行。每一次出入,都是与这座城市的再度相逢。
『越秀·外滩樾』仅48套低密风貌别墅(双拼/三拼),地上3层、地下2层,层高3.2-3.9米、地下挑空6.15米,户户带30-80平私家庭院、观景露台。
建面约238平、305平、318平、338平米

项目地上3层,自带庭院。一楼的庭院,将是你栽花听雨的江南;三楼的露台,将是你仰望星空的避风港,在越秀外滩樾,自然将不是风景,而是生活本身。
项目最高约6.15米的地下挑高空间,可作私人艺廊、品茗禅室,或是一场永不散场的沙龙。
另外,项目的弧形玻璃引天光入画,落地窗将四季裁成框景。一扇窗,一面墙,皆是与世界的温柔对话。此刻,上海不再是远方,而是你窗前的晨昏,院里的四季。
户型图如下:(过程稿仅供参考,以实际为准)

236.25㎡A户型:

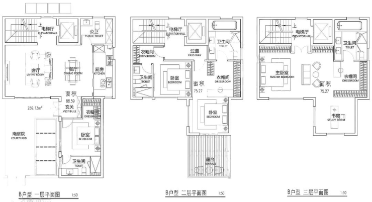
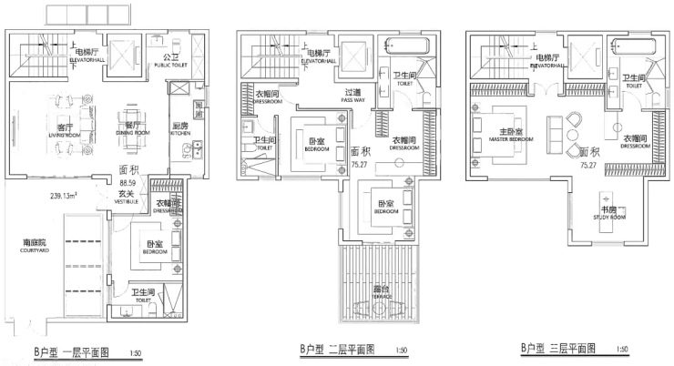
239.13㎡B户型:

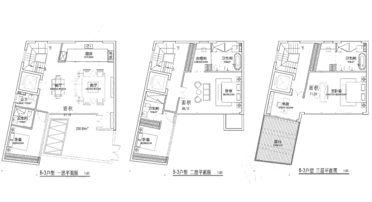
250.89㎡B-3户型:

C户型:

291.42㎡D户型

305m²样板房













项目的设计总顾问邀请了程绍正韬,他是建筑室内设计之东方主义集大成者,致力于东方文化的坚守与创新,打破惯常的职业思维,将生活方式化作一种哲学态度,融入空间设计,让设计不止于作品,
大师操刀,必然不同凡响。
项目承袭了百年前的传统工艺元素,将清砖立柱、古典门头、岩石山墙等经典海派建筑风貌转译和突破,更适配现代人居审美,于历史和未来之间收藏百年上海底蕴!

项目实景图
保留历史肌理的老砖为基底,项目们以现代陶艺重译传统,研发陶砖。
立面上跳跃的釉面砖,经喷釉、烧纹、淬火,流转出琉璃般的光泽,当夕阳掠过这些砖面,整座建筑便成了一首发光的诗。
项目实景图
越秀外滩樾的公区庭院非常精致,其精心打造充满禅意的山水庭院。
项目实景图
项目实景图
突破风貌别墅公区狭小的限制,越秀外滩樾做了一个地上地下合计建面约2500㎡会所及泛会所空间,提供了会客、私宴、泳池、健身等多维休闲社交功能。
更通过堆坡造景和下沉庭院,以山水隐奢之境,塑造沉浸式大师美学体验。
一石一木,一水一庭,尽是自然落笔。晨露未晞时,薄雾轻笼庭院;暮色四合处,斜阳漫染白墙。所谓大隐于市,不过如此!
项目实景图
项目实景图
在越秀外滩樾,项目以大地为宣纸用15米高差,临摹了一幅立体的《溪山行旅图》。
当晨光掠过整座山水庭院,便活成了会呼吸的宋代画卷,每一处转折都在诉说"外师造化,中得心源"的东方营造哲学!
▲坡形庭院,越秀·外滩樾,上海,实景图
你眼前的画卷,还可以是越秀·外滩樾立体地下庭院难掩的风景。越秀·外滩樾打造了一座贯穿三层楼的山水庭院,三层地下庭院高约18米,相当于6层住宅的高度。
他们在庭院中引入了一条水系,不是平铺在地面上,而是让水流在墙面上垂直流淌。它出现在地下一层的旋梯上,地下二层的庭院中,汇聚到了地下三层的会所。
▲墙面上流淌的水系,越秀·外滩樾,上海,实景图
顺着旋梯而下,地下一层高约8米的双杆孪生连理松,与墙面上的原生山石皮,在你身旁环绕成了层峦叠嶂的意象。
▲立体庭院,越秀·外滩樾,上海,实景图
松树掩映的玻璃栈桥,一边连接着楼盘的泛会所,一边嵌入了一个崖洞一般的「灰空间」,坐入其中,听水声与鸟鸣,你会感到一种很原始很舒适的包裹感。
▲地下一层,越秀·外滩樾,上海,实景图
地下二层藏着一个同样很有包裹感的庭院,环抱式的台地既是台阶,又是座椅。越秀·外滩樾对整个地下空间做了精细的光线设计,每一层都能照射到自然天光,因此这个地下二层的庭院仍然能够沐浴天光。穿过庭院,越秀·外滩樾的地下车库就藏在这里。
▲地下二层的天光庭院,越秀·外滩樾,上海,实景图
越秀·外滩樾的会所在地下三层。他们在会所中做了造型各异的奢石景墙,用各种隐约可见,来分隔和连接不同的功能空间。
室内恒温泳池一端设计了很有古典气息的奢石涌泉,形制复刻自古罗马浴场。泳池的上方设计了珍贵的自然采光,阳光投入碧波,会给你带来「天光水影共徘徊」的美好感受。
▲泳池,越秀·外滩樾,上海,实景图
透过瀑布湍流的天光庭院,你在泳池里就可以看到会客厅中家人相伴的身影。会客厅沙发背后的镂空转角奢石景墙与金属屏风,不只是装饰品,它让会客厅与背后奢华的大堂吧隔而不离。你可以透过它,看到吧台的透光奢石景墙。
会所里还藏着一个超长的私宴厅。你可以在这里品酒,也可以在这里品茗,可以闲聊,也可以打掼蛋或者打麻将,这里还可以滋生出一场很日常的聚会,这些功能空间,全都是与私宴厅一体化设计的。
▲会客厅与大堂吧,越秀·外滩樾,上海,实景图
【交通】公共交通,项目周边4、10、12、19号线(在建中)四轨交汇。其中直线距离轨交4/10号线海伦路站约850m,进站后3站可达南京东路,6站可达新天地。
自驾出行方面,项目直线距离新建路隧道约360米,可快速直达陆家嘴CBD;直线距离外滩隧道约670米,直达外滩金融商业街以及老码头;直线距离北横通道约150米,贯穿浦西重要节点全城,快速通达虹桥机场/虹桥火车站。
【商业】 项目约2公里内,多元繁华构筑封面商业圈
北外滩商圈直线距离约500米;外滩商圈直线距离约1000米;陆家嘴商圈直线距离约1500米;瑞虹商圈直线距离约900米。
【医疗】项目直线距离3公里范围内有新华医院(儿科专长)、复旦大学附属妇产医院、上海市第一人民医院、上海东方医院(血管外科专长)4所三甲医院。
【教育】项目周边有东余杭路幼儿园、四川北路第一小学、上海虹口二中心小学(在建中),上海外国语大学附属外国语学校等优质学校。免责声明:以上教育资源整理仅代表楼盘与学校的距离,该房屋所在项目暂未划分学区,开发商不对项目交房后所属学区、学校做任何承诺。教育资源分配或学校/学区划分以及学校的具体招生规则等请以政府相关主管部门、教育机构公开的最新信息为准。
【生态】项目周边有北外滩滨江绿地、四川北路公园、和平公园、鲁迅公园等公建配套,于滨江和城市低密绿芯之间,畅享诗意生活
项目核心信息查询
🏠【项目核心动态、户型面积、实时总价、配套规划】可致电官方热线400-902-3966一键查询,专业置业顾问实时解答。
温馨提示
如需了解楼盘备案价格、在售房源状态、户型详情、项目配套、属地购房政策等更多核心信息,欢迎随时通过项目官方指定预约热线咨询——官方指定预约热线:400-902-3966,专业置业顾问将为您提供一对一专属服务,助您安心置业、选到心仪好房。
本电话为开发商官方线上预约热线,提供楼盘全维度信息咨询,涵盖楼盘简介、最新均价、房价走势、现房期房、别墅产品、一房一价、备案价、备案名、楼盘地址、户型图、样板间、交通规划、项目配套、周边配套、开盘时间、认筹时间、最新进展、剩余房源、优质房源、甄选房源、剩余少量席位、专属优惠等详细信息。楼盘详情丨实时房价丨专属优惠丨房源有限丨欢迎致电丨诚邀品鉴售楼处地址丨户型鉴赏丨最新动态丨一对一置业咨询
免责声明
本内容为越秀外滩樾官方发布,仅作购房咨询指引使用,不构成要约或承诺,版权归开发商所有;
本文涉及的项目相关信息,均以政府最终审批文件及买卖双方签订的《商品房买卖合同》为准;
本文发布内容均为 2026 年 4 月最新信息,如有变更恕不另行通知,最终解释权归开发商所有。
声明:本文由入驻焦点开放平台的作者撰写,除焦点官方账号外,观点仅代表作者本人,不代表焦点立场。


