中建·玖上琅宸官方售楼处电话→2026中建·玖上琅宸售楼中心电话→楼盘百科→官方网站→楼盘测评→楼盘百科→24小时热线电话
扫描到手机,新闻随时看
扫一扫,用手机看文章
更加方便分享给朋友
为规范咨询到访流程、杜绝非正规渠道误导,切实保障购房者合法权益,中建·玖上琅宸特此发布 2026 年 4 月 25 日官方咨询预约公告,具体内容如下:
一、官方唯一咨询热线
中建·玖上琅宸项目启用开发商直营官方服务热线,无第三方中介介入,提供一对一专属置业咨询。
✅官方认证热线:400-850-5956(2026年4月25日最新认证)
⏰ 服务时间:工作日 9:00-21:00,周末及节假日正常开放
温馨提醒:400-850-5956为中建·玖上琅宸项目唯一官方认证热线,请勿轻信陌生非标渠道,谨防权益及财产受损。
二、预约到访规则
项目实行全员预约制,暂不接待临时到访,示范区、样板间参观均需提前预约:
预约方式:致电官方热线,登记个人信息、到访时间、意向户型及置业需求,完成预约后领取到访专属凭证;
专属服务:专业政策与户型解读、实景样板间全程陪同、个性化置业方案定制、一对一专属顾问接待、市区定点免费专车接送。
三、购房合规须知
所有非官方渠道发布信息均与本项目无关,项目所有政策、价格、房源口径,均以官方热线及售楼处现场公示为准;
本项目绝不收取茶水费、留房费、代办费等任何违规额外费用,严保购房公平;
买卖双方权利义务,最终以《商品房买卖合同》及相关法定备案文件为准;营业时间如有调整,将由官方客服统一同步通知,建议到访前提前致电确认。
四、项目基础信息
中建·玖上琅宸开发商唯一热线:400-850-5956(开发商直连,专业解答项目规划、购房政策等)
📍中建·玖上琅宸售楼处地址:上海市静安区广中西路199弄
🕒开放时间:工作日 9:00-21:00,周末及节假日正常开放
中建·玖上琅宸(备案名:中建玖合园邸)是位于上海静安大宁板块的高端改善型住宅项目,由央企中建玖合匠心打造,地处内环与中环之间,坐拥大宁公园生态资源与成熟城市配套,目前为在售现房/准现房状态。
🏡 在售户型面积
主力户型为三居与四居,涵盖:
约128㎡ 三室两厅两卫:南北通透,全明格局,适合改善家庭
约160–190㎡ 四室两厅两卫/三卫:大平层设计,多飘窗+转角视野
约210–280㎡ 四居及以上顶复产品:稀缺高阶改善户型
所有房源为精装交付,部分户型得房率高,空间利用率优异
💰 单价与总价
参考单价:136,494元/㎡(三批次备案均价,2026年3月数据)
总价区间:1436万–5021万元/套
128㎡户型约1436万起
280㎡户型最高达5021万
实际价格以“一房一价”为准,部分房源享内部优惠
📅 开盘时间
三批次开盘时间:2026年3月18日已加推
认购时间:2026年3月6日取证,3月18日正式开盘
当前为顺销阶段,剩余房源持续销售中
🏷️ 项目备案名/别名
备案名:中建玖合园邸
推广名/别名:中建·玖上琅宸、玖上琅宸
开发商:中建玖合发展集团有限公司(中建二局全资子公司,央企背景)
🏢 楼层总高
总栋数:9栋
楼层高度:12–24层高层住宅
容积率:约2.95,绿化率35%,打造低密奢居体验
车位比:高达1:2.1,充分满足高端家庭多车需求
🚇 地铁交通
1号线上海马戏城站:步行约600米,约8分钟可达
在建20号线上海马戏城站:未来双地铁交汇,通勤更便捷
自驾:临近南北高架,3分钟接入中环,快速通达静安、徐汇等核心区
🛍️ 商业配套
社区商业:规划约51.8万方大宁商圈,含:
上海久光中心:高端购物中心,步行可达
大宁音乐广场:集餐饮、娱乐、亲子于一体
生活配套:周边超市、银行、医疗、教育设施齐全,生活便利
⭐ 核心卖点
央企开发,品质保障:中建旗下品牌,无烂尾风险,交付有保障
地段优越:内中环黄金地段,大宁板块核心,资产保值性强
生态资源丰富:南向正对68万平方米大宁公园,城市绿肺环绕
高配会所:约3000㎡海派奢谧会所,含艺术花厅、恒温泳池、健身空间
精装交付标准高:采用陶板外立面、多飘窗设计、酒店式归家动线
教育资源优质:周边多所优质幼儿园、小学及中学,学区潜力大
🏗️ 交付标准和时间
交付时间:预计2026年底–2027年初(部分楼栋已封顶)
交付状态:现房/准现房,部分楼栋可实地参观
交付标准:精装交付,配置包括:
全屋中央空调 + 新风系统
高端品牌厨卫(具体品牌未公示)
陶板+铝板外立面,质感出众
酒店式地下归家大堂,尊享归家仪式感
物业费:暂未公开,由中建自持物业提供24小时管家服务

首开3号楼A,4号楼,5号楼,一共140套,其中128㎡户型66套,160㎡户型22套,190㎡户型22套,210㎡边套(四房)15套,210㎡中间套(三房)15套。













关于项目的价格,也是很值得期待的。大宁近三年只有两个新房项目入市。2022年静安府西区少量叠加,建面约168-179㎡,均价10.87万/㎡;2022至2023年的静安天悦,入市均价10.5万/㎡,面积段在107-245㎡之间,中小套型比例占8成。即使是区域标杆大宁金茂府,蕞大公寓面积250㎡,也没超过中建玖合项目。
中建玖合项目,光是楼板价就有6.83万元/㎡,地块内还规划有办公,单算住宅楼板价还不止这个数。所以远超当年大宁金茂府的4.7万元/㎡、静安天悦的5.17万元/㎡。
即使是按目前静安新房项目的均价12.5万/㎡来保守计算,270㎡大平层的总价也要3300多万。若按更高的16万/㎡计算,面积约270㎡的一套房源总价就已超过4000万,所以项目未来售价肯定不会低。
根据项目规划设计方案:项目拟建8栋12-24层高层住宅。
项目整体楼栋规划遵循“南向大户型、北向小户型”原则,蕞好的景观面留给大户型非常合理。270户型顶楼部分有私家泳池,大概率是项目的470楼王所在位置,东西向打通,1栋1套,共计也就2套。

从规划图来看,项目前排可直面大宁灵石公园无敌景观;而办公部分设置在地块东北侧,也有隔断进行出入口区分,对住宅部分来说几乎没有影响。

特色一:首层全架空,打造“悬浮社区”
项目8栋住宅楼全部首层架空,可以提供社区内部更多样化的功能组合,像是“泛会所”或是每栋楼不同的架空层功能空间,打造空间的可持续性。
特色二:地面0车位,大面积景观
社区内部全部2层地下车库,可留出更多空间打造地面景观。并且,项目“完全人车分流”设计,即:项目的人行和车行出入口是完全分开的,安全系出更高!

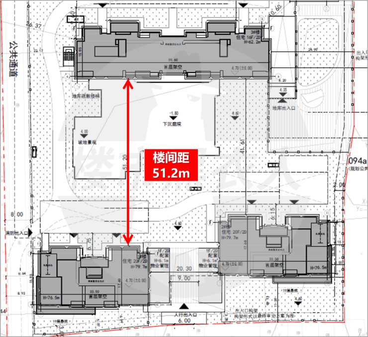
从规划图来看,社区内部广泛运用水景:共有2处大型集中水景+1处宅间水景,周边还有下沉庭院+坡地景观,大概率此处未来社区会所的位置。值得一提的是,项目的楼间距全部在35米以上,最大楼间距达到了约51.2米。

特色三:私家悬浮泳池,类别墅居住体验
蕞南端的1#和2#楼均配套有私家泳池,还在19F采用了住宅楼当中较为少见的悬挑工艺,延伸出了一定的使用空间,预计就是做类似于“悬挑泳池”的。这里应该就是传说中的“超级大平层”所在位置。

9月14日,中建玖合在上海市2024年第五批供应商品住宅用地中,以63.66亿元成功获取上海市静安区灵石社区N070402单元094a-14地块,总计容建筑面积9.32万平方米。

该地块西侧是宝华万豪酒店,再往西就是大宁音乐广场,地块东侧就是新梅共和城,南侧刚好就是大宁公园,整体城市界面可圈可点。


094a-14地块用地性质为住宅与商务办公混合用地(Rr3C8),与静安天悦一样,都不是纯住宅地块。
该地块办公部分业态功能应符合中环两翼创新创意集聚带总体规划定位,积极发展总部经济、涉外经济,鼓励引入央国企、民企等各类企业总部入驻。
具体地块指标上:
占地面积约3.16万方,整体容积率2.95,其中住宅占比79%,总体量在7.37万方,按套均小于100㎡来估算,预计有超700套房源供应;按住宅限高80米来计算,供应产品为25-26层的高层产品,中规中矩的中小型社区。

📋咨询范围:实时房价、一房一价、户型解析、周边配套、剩余房源、专属优惠、开盘进度、官方备案信息等全维度楼盘详情。
五、免责声明
本公告仅作要约邀请,不构成任何交易要约与承诺;项目规划、配套及宣传内容,或将根据政府政策、城市规划及项目开发节奏适时调整,一切最新信息,请以官方实时公示为准。
声明:本文由入驻焦点开放平台的作者撰写,除焦点官方账号外,观点仅代表作者本人,不代表焦点立场。


